Vente
Terrain
à
Calais
79 000 €
Calais (62100)
iad France - Christophe Devliegher vous propose:
Terrain à bâtir de 246 m² à Calais - avec permis de construire accordé et purgé.
Vous rêvez de devenir propriétaire d'un immeuble de rapport dans un cadre paisible et recherché ? Ou vous installez en profession libérale à plusieurs?
Ce terrain à bâtir de 246 m² à Calais est l'opportunité parfaite pour concrétiser votre projet de construction.
Situation et Environnement :
Situé dans un quartier résidentiel calme de Calais, ce terrain bénéficie d'une exposition idéale avec des orientations sud et est, offrant ainsi un ensoleillement optimal tout au long de la journée. À proximité des commodités, des écoles, des commerces et des axes de transport, ce terrain offre un cadre de vie pratique et agréable.
Caractéristiques du Terrain :
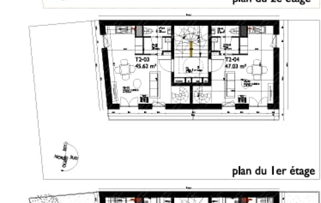
Ce terrain plat et rectangulaire est prêt à accueillir la construction de votre futur projet avec permis de construire accordé pour un collectif de 4 lots, avec terrasses et balcons extérieurs et 4 places de parking, l'ensemble aux normes PMR. Avec une surface de 246 m², il offre suffisamment d'espace pour réaliser un projet de construction personnalisé selon vos besoins et vos envies.
Viabilité et Réseaux :
Le terrain est déjà raccordé aux réseaux essentiels tels que l'électricité, l'eau potable et les eaux usées, ce qui facilitera grandement le processus de construction. De plus, l'accès des camions est aisé, rendant les travaux de construction plus pratiques.
Opportunité Unique :
Ce terrain à bâtir à Calais représente une occasion rare de réaliser votre projet de construction dans un quartier prisé et tranquille. Profitez de cette opportunité pour construire la maison sur mesure qui correspondra en tous points à vos attentes.
N'attendez plus pour transformer vos rêves en réalité. Contactez-nous dès aujourd'hui pour plus d'informations et pour organiser une visite sur place.
Eligible Dispositif Pinel, et possibilité profession libérale, Cabinet Medical ou paramedical, avocat...etc
A 7 min à pieds de l'Université du Littoral, bus gratuit devant le terrain desservant la ville et jusqu'à la plage.
Le projet prévoit :
Une architecture contemporaine et soignée
Des logements lumineux et bien agencés
Un environnement calme, proche de toutes commodités
Tous les documents administratifs sont à jour : permis purgé de tout recours.
En éco quartier au coeur de Calais, proximité Cité de la Dentelle, viabilisé avec permis de construire accordé pour réaliser un collectif de 4 logements, 2 T1 avec terrasses, et 2 T2 duplex avec balcon, et 4 places de parking.
Les raccordements en puissance Enedis sons réalisés jusqu'au terrain en dimensionnement du collectif.
L'eau est également raccordée au terrain.
Le permis de construire est complet et validé par la mairie, et purgé, réalisé par Architecte.
Une exception dans ce secteur en ecoquartier pour un collectif.
Possibilité de revendre chaque lot.
Je dispose de plusieurs biens et fonds de commerce, n'hésitez pas à me consulter, merci.
Honoraires d'agence à la charge du vendeur.
Bien non soumis au DPE. Les informations sur les risques auxquels ce bien est exposé, y compris l'obligation légale de débroussaillement, sont disponibles sur le site Géorisques : http://www.georisques.gouv.fr.
La présente annonce immobilière a été rédigée sous la responsabilité éditoriale de M Christophe Devliegher mandataire indépendant en immobilier (sans détention de fonds), agent commercial de la SAS I@D France immatriculé au RSAC de LILLE METROPOLE sous le numéro 793293150, titulaire de la carte de démarchage immobilier pour le compte de la société I@D France SAS.
Mandat : 1755697
Diagnostic de Performance Énergétique (DPE)
Plus d'informations
-
Conditions
- Honoraires à charge de : vendeur
-
Superficies
- Superficie terrain : 246 m²
Localisation
Contactez nous
Pour plus d'informations sur cette annonce, n'hésitez pas à nous contacter