Vente
Maison de campagne
à
Tarzy
75 000 €
Tarzy (08380)
iad France - Elisabeth Brichot vous propose: Amoureux des belles pierres, je vous propose cet ancien corps de ferme de 250m2 à TARZY.
Niché dans un écrin de verdure ,il vous offre une véritable page blanche à réinventer entièrement.
Situé à la campagne ,proche de SIGNY LE PETIT et de toutes les commodités recherchées, il se compose d'un vaste bâtiment à réhabiliter complètement, avec de beaux volumes et un charme brut prêt a être sublimé.
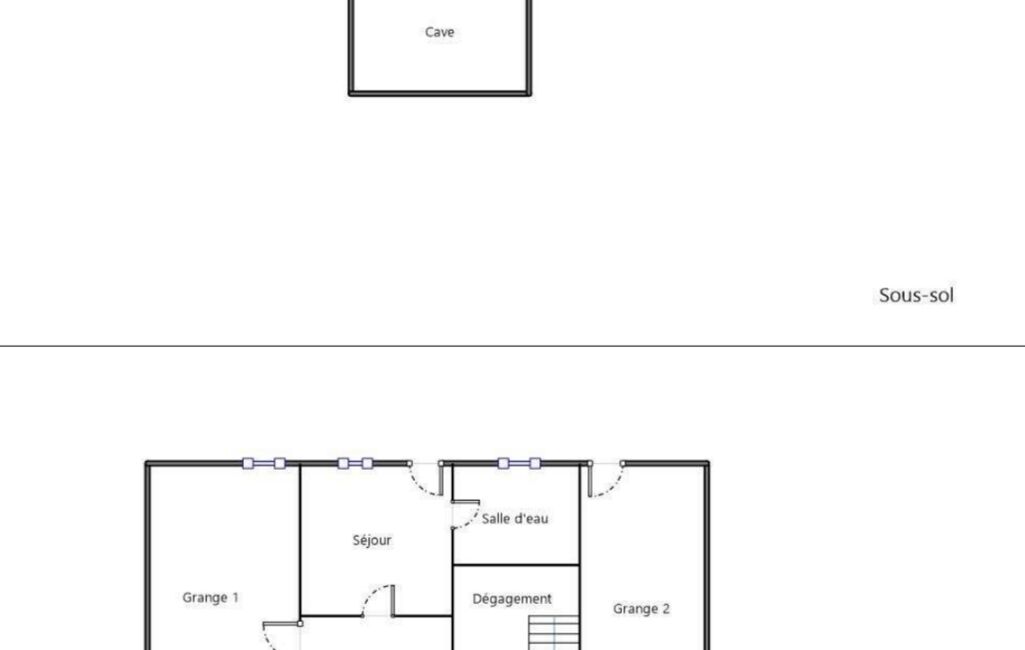
Au RDC, une entrée de 23m2 ,une SDB de 9 m2,une pièce de 15m2 et 2 anciennes écuries de chaque côté de 36 et 45 m2.
A l'étage, un vaste grenier à l'état brut sur toute la surface de la maison.
Pour finir de vous séduire, un terrain confortable de 1553 m2 entièrement clôturé pour profiter pleinement de la nature, créer un jardin et un espace convivial.
Fosse septique non conforme
TF 300
Honoraires d'agence à la charge du vendeur.
Bien non soumis au DPE. Les informations sur les risques auxquels ce bien est exposé, y compris l'obligation légale de débroussaillement, sont disponibles sur le site Géorisques : http://www.georisques.gouv.fr.
La présente annonce immobilière a été rédigée sous la responsabilité éditoriale de Mme Elisabeth Brichot mandataire indépendant en immobilier (sans détention de fonds), agent commercial de la SAS I@D France immatriculé au RSAC de SEDAN sous le numéro 883933160, titulaire de la carte de démarchage immobilier pour le compte de la société I@D France SAS.
Mandat : 1851090
Diagnostic de Performance Énergétique (DPE)
Plus d'informations
-
Descriptif
- Nbre. d'étages : 1
- Nb. de pièces : 4
-
Superficies
- Superficie terrain : 1553 m²
- Surface habitable : 250 m²
-
Etat
- Année de construction : 1949
-
Conditions
- Honoraires à charge de : vendeur
Localisation
Contactez nous
Pour plus d'informations sur cette annonce, n'hésitez pas à nous contacter