Vente
Terrain
à
Vernou-la-Celle-sur-Seine
74 900 €
Vernou-la-Celle-sur-Seine (77670)
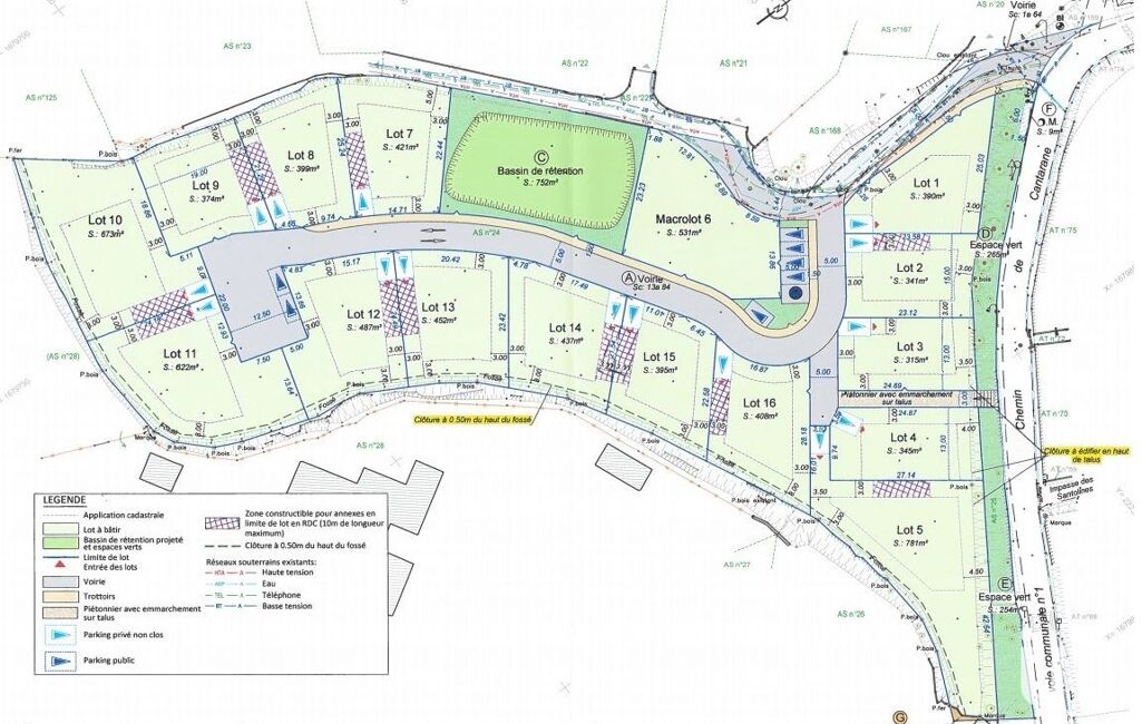
iad France - Nathalie Santos vous propose: Terrain à bâtir de 369 m2 disponible à Marangis. Situé dans un environnement paisible, ce terrain offre un potentiel de construction idéal pour réaliser votre projet immobilier sur-mesure.
Façade de 19,45 m environ. Électricité et eau déjà présentes sur la parcelle.
Possibilité d'acquérir également le terrain mitoyen de 370 m2.
Honoraires d'agence à la charge du vendeur.
Bien non soumis au DPE. Les informations sur les risques auxquels ce bien est exposé, y compris l'obligation légale de débroussaillement, sont disponibles sur le site Géorisques : http://www.georisques.gouv.fr.
La présente annonce immobilière a été rédigée sous la responsabilité éditoriale de Mme Nathalie Santos mandataire indépendant en immobilier (sans détention de fonds), agent commercial de la SAS I@D France immatriculé au RSAC de MELUN sous le numéro 522236835, titulaire de la carte de démarchage immobilier pour le compte de la société I@D France SAS.
Mandat : 1823435
Diagnostic de Performance Énergétique (DPE)
Plus d'informations
-
Conditions
- Honoraires à charge de : vendeur
-
Superficies
- Superficie terrain : 369 m²
Localisation
Contactez nous
Pour plus d'informations sur cette annonce, n'hésitez pas à nous contacter