Vente
Maison de campagne
à
La Barde
65 000 €
La Barde (17360)
iad France - Marlène MIGNONNEAU vous propose: Venez découvrir cette maison ancienne pleine de charme et de potentiel, située à seulement 15 minutes de Coutras, à proximité de l’axe Bordeaux-Angoulême.
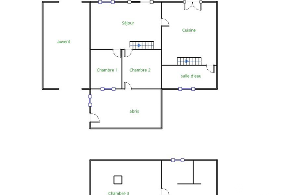
Implantée sur un terrain de 2 400 m², elle dispose d’un grand garage attenant et de très beaux volumes.
Nombreuses possibilités : résidence principale familiale ou création de deux logements locatifs.
Travaux à prévoir (chauffage, assainissement individuel, isolation, plâtrerie, salles d’eau). Possibilité de mise en relation avec des artisans locaux pour le chiffrage du projet.
Atouts : dépendance avec toiture et charpente neuves, toiture de la maison en bon état, menuiseries changées, bâtiment sain.
Environnement calme, sur les hauteurs, à la sortie du village, proche des commodités.
Une belle opportunité pour un projet de rénovation ou d’investissement.
Honoraires d'agence à la charge du vendeur.
Bien non soumis au DPE. Les informations sur les risques auxquels ce bien est exposé, y compris l'obligation légale de débroussaillement, sont disponibles sur le site Géorisques : http://www.georisques.gouv.fr.
La présente annonce immobilière a été rédigée sous la responsabilité éditoriale de Mme Marlène MIGNONNEAU mandataire indépendant en immobilier (sans détention de fonds), agent commercial de la SAS I@D France immatriculé au RSAC de LIBOURNE sous le numéro 881329130, titulaire de la carte de démarchage immobilier pour le compte de la société I@D France SAS.
Mandat : 1845021
Diagnostic de Performance Énergétique (DPE)
Plus d'informations
-
Descriptif
- Nbre. de chambres : 3
- Nb. de pièces : 5
-
Superficies
- Superficie terrain : 2400 m²
- Surface habitable : 160 m²
-
Conditions
- Honoraires à charge de : vendeur
Localisation
Contactez nous
Pour plus d'informations sur cette annonce, n'hésitez pas à nous contacter