Vente
Appartement
à
Montargis
58 900 €
Montargis (45200)
iad France - Stéphanie Younes vous propose: Nouveau Appartement de 3 pièces à Montargis - Rénové
Pour Acquisition en résidence principale , secondaire ou investissement locatif
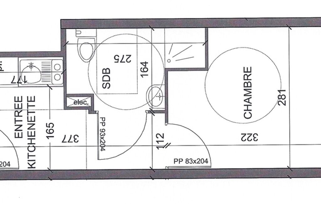
Découvrez ce superbe appartement de 3 pièces situé dans la charmante ville de Montargis. Doté d'une surface de 56.75m², cet appartement rénové offre un cadre de vie élégant et confortable.
Lorsque vous entrez dans cet appartement lumineux, vous êtes accueilli dans un espace de vie convivial et moderne. La pièce principale bénéficie de grandes fenêtres laissant entrer une belle luminosité naturelle. Le séjour offre un espace idéal pour se détendre ou recevoir des invités, avec la possibilité d'aménager un coin repas pour partager des moments conviviaux.
De plus, vous pourrez profiter d'un balcon, idéal pour prendre l'air et admirer la vue imprenable sur les environs.
La cuisine est bien agencée spacieuse et séparée du séjour. vous trouverez 2 chambres ainsi qu'une salle de bain avec baignoire et wc séparé.
Cet appartement se trouve dans une résidence sécurisée, vous garantissant tranquillité et sérénité. La proximité des commodités telles que les commerces, les écoles et les transports en commun ajoute un grand avantage à ce bien.
cet appartement se situe au dernier étage de la résidence , vous apprécierez son charme , sa lumière et sa tranquillité ainsi que son prix très attractif et concurrentiel qui en font une opportunité rare sur le marché immobilier de Montargis.
Vous trouverez au pied de l'immeuble des places de stationnement toujours disponible.
Ne manquez pas l'occasion de devenir propriétaire de ce T3 . Contactez moi dès aujourd'hui pour planifier une visite et découvrir par vous-même tout le potentiel de ce bien .
La presente annonce immobiliere vise 2 lots situés dans une copropriété de 65 lots au total et ne faisant l'objet d'aucune procédure en cours citée à l'article L. 721-1 du code de la construction et de l'habitation. Montant moyen mensuel de charges déclaré par le vendeur : 159.33€ par mois (soit 1912 € annuel). Honoraires d'agence à la charge du vendeur.
Information d'affichage énergétique sur ce bien : classe ENERGIE E indice 292 et classe CLIMAT B indice 6. Les informations sur les risques auxquels ce bien est exposé, y compris l'obligation légale de débroussaillement, sont disponibles sur le site Géorisques : http://www.georisques.gouv.fr.
La présente annonce immobilière a été rédigée sous la responsabilité éditoriale de Mme Stéphanie Younes mandataire indépendant en immobilier (sans détention de fonds), agent commercial de la SAS I@D France immatriculé au RSAC de orlean sous le numéro 529936148, titulaire de la carte de démarchage immobilier pour le compte de la société I@D France SAS.
Mandat : 1917744
Diagnostic de Performance Énergétique (DPE)
Plus d'informations
-
Descriptif
- Cave
- Nb. de WC : 1
- Nb. de salles de bain : 1
- Nbre. d'étages : 5
- Nbre. de chambres : 2
- Nb. de pièces : 3
-
Loi ALUR
- Copropriété
- Nombre de lots de la copropriété : 65
- Moyenne de la quote part(an) : 1 912 €
-
Equipement
- Digicode
-
Etat
- Année de construction : 1961
-
Conditions
- Honoraires à charge de : vendeur
-
Superficies
- Surface habitable : 57 m²
Localisation
Contactez nous
Pour plus d'informations sur cette annonce, n'hésitez pas à nous contacter