Location
Appartement
à
Rambouillet
830 € CC /mois
Rambouillet (78120)
iad France - Jean-Luc Alexis vous propose: Loue appartement de Charme à 10 minutes du Centre-Ville de Rambouillet
Vous recherchez un appartement fonctionnel et idéalement situé à Rambouillet ? Ne cherchez plus cet appartement de 2 pièces est une véritable opportunité près du cOEur de ville.
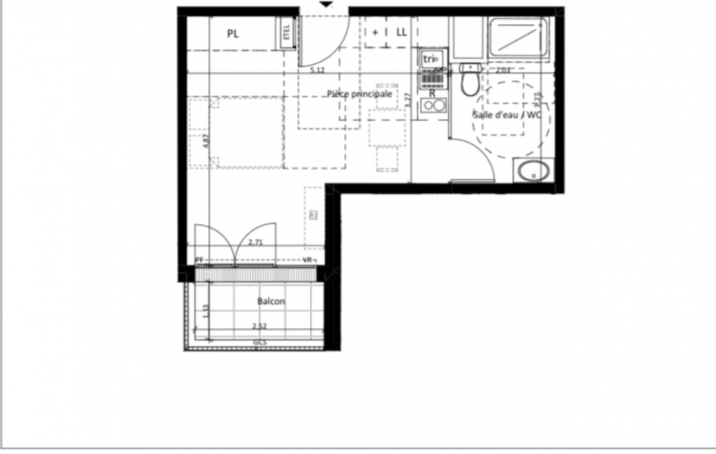
Dès l'entrée, vous serez séduit par l'agencement optimal de cet appartement, entièrement rénové de 42.55m², situé au 2ème étage d'un immeuble de 4 niveaux datant de 1960 récemment isolé extérieurement, . L'espace de vie principal se compose d'un séjour lumineux de 17.99m², d'une chambre avec une salle d'eau attenante avec douche à l'italienne.
La cuisine ouverte, bien agencée, offre un espace convivial pour cuisiner et partager des repas en famille ou entre amis. Vous pourrez également profiter d'un espace cellier, d'un WC séparé ainsi que d'une cave pour plus de confort au quotidien.
Les fenêtres exposées sud-ouest offrent une belle luminosité tout au long de la journée, créant une atmosphère chaleureuse et agréable.
Cet appartement bénéficie de nombreux avantages pour votre confort : accès à la fibre optique, système de chauffage au gaz de ville et ventilation mécanique pour une qualité d'air optimale.
Idéalement situé en périphérie du centre-ville, vous serez à seulement 15 minutes à pieds de la gare ainsi que de tous commerces. Vous trouverez également à proximité les écoles ainsi que des espaces verts pour des moments de détente en plein air.
Vous êtes à la recherche d'un appartement proche de toutes commodités, celui-ci saura répondre à vos attentes. Une visite s'impose pour apprécier pleinement tout son charme et ses atouts. N'hésitez pas à me contacter pour plus d'informations ou pour organiser une visite.
Information d'affichage énergétique sur ce bien : classe ENERGIE C indice 146 et classe CLIMAT C indice 14. Les informations sur les risques auxquels ce bien est exposé, y compris l'obligation légale de débroussaillement, sont disponibles sur le site Géorisques : http://www.georisques.gouv.fr.
La présente annonce immobilière a été rédigée sous la responsabilité éditoriale de M Jean-Luc Alexis mandataire indépendant en immobilier (sans détention de fonds), agent commercial de la SAS I@D France immatriculé au RSAC de CHARTRES sous le numéro 500134382, titulaire de la carte de démarchage immobilier pour le compte de la société I@D France SAS. Location non meublée. Montant du loyer mensuel charges comprises : 780.00 euros / mois. Provision mensuelle avec récupération annuelle : 80.00 euros / mois. Zone soumise à encadrement : non. Dépôt de garantie : 700 euros. Honoraires TTC à la charge du locataire: 306 euros (soit 7€/m²).
Mandat : 1879727
Diagnostic de Performance Énergétique (DPE)
Plus d'informations
-
Descriptif
- Cave
- Étage du bien : 2eme
- Nbre. d'étages : 4
- Nbre. de chambres : 1
- Nb. de pièces : 2
-
Equipement
- Placards
- Chauffage : collectif gaz radiateur
- Interphone
-
Conditions
- Charges : 80 €
- Honoraires : 306 €
-
Etat
- Année de construction : 1960
-
Superficies
- Surface habitable : 42 m²
Localisation
Contactez nous
Pour plus d'informations sur cette annonce, n'hésitez pas à nous contacter