Vente
Maison de village
à
Saint-Aignan-le-Jaillard
58 000 €
Saint-Aignan-le-Jaillard (45600)
iad France - Marion Duloy vous propose: Maison à rénover avec cachet à Saint-Aignan-le-Jaillard - Idéal pour les Amoureux de la Campagne et du Calme.
Elle vous séduira par ses murs en pierre apparente, ses poutres en bois et son sol en tomette, qui lui confèrent un véritable caractère authentique. Cette propriété présente un potentiel exceptionnel pour se créer un cocon chaleureux, à son image.
D'une surface totale de 109 m² (hors combles aménageables), cette maison dispose d'une parcelle de terrain de 169 m², offrant ainsi un bel espace extérieur pour profiter des journées ensoleillées. Orientée sud/ouest, elle bénéficie d'une exposition idéale pour une luminosité optimale tout au long de la journée.
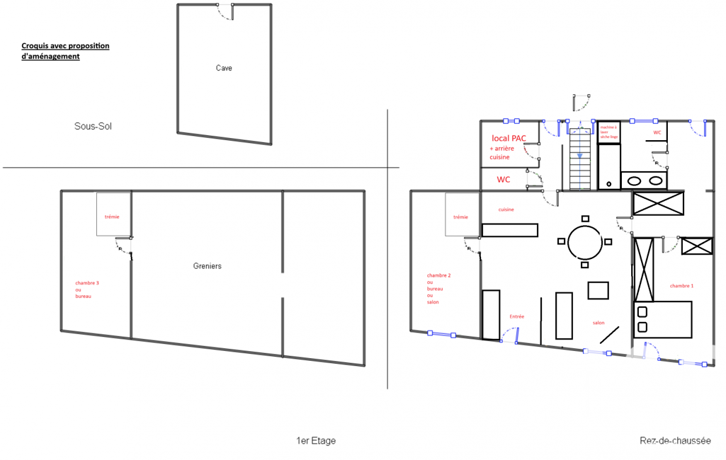
À l'intérieur, vous trouverez, trois pièces, deux salles d'eau et deux WC. Vous pourrez laisser libre cours à votre imagination pour réaménager cet espace selon vos envies et vos besoins.
Cette bâtisse, initialement divisée en 2 logements distincts, pourra être repensée en une seule et même habitation ou retrouver ses cloisons d'origine pour quelqu'un qui souhaite vivre dans l'une tout en louant l'autre.
La maison dispose aussi d’une cave de 27 m², idéale pour du stockage ou créer un atelier.
Contactez-nous dès maintenant pour organiser une visite et découvrir tout le potentiel de cette charmante maison à Saint-Aignan-le-Jaillard.
Honoraires d'agence à la charge du vendeur.
Bien non soumis au DPE. Les informations sur les risques auxquels ce bien est exposé, y compris l'obligation légale de débroussaillement, sont disponibles sur le site Géorisques : http://www.georisques.gouv.fr.
La présente annonce immobilière a été rédigée sous la responsabilité éditoriale de Mme Marion Duloy mandataire indépendant en immobilier (sans détention de fonds), agent commercial de la SAS I@D France immatriculé au RSAC de ORLEANS sous le numéro 989175054, titulaire de la carte de démarchage immobilier pour le compte de la société I@D France SAS.
Mandat : 1873421
Diagnostic de Performance Énergétique (DPE)
Plus d'informations
-
Descriptif
- Terrasse
- Nbre. d'étages : 1
- Nbre. de chambres : 1
- Nb. de pièces : 3
-
Superficies
- Superficie terrain : 169 m²
- Surface habitable : 109 m²
-
Equipement
- Chauffage : electrique
-
Conditions
- Honoraires à charge de : vendeur
Localisation
Contactez nous
Pour plus d'informations sur cette annonce, n'hésitez pas à nous contacter