Vente
Maison neuve
à
Availles-en-Châtellerault
159 500 €
Availles-en-Châtellerault (86530)
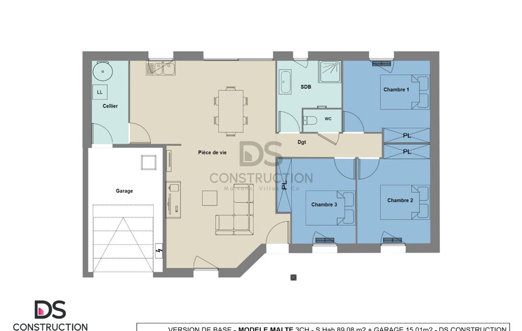
Découvrez le modèle Malte, une maison de 88 m² au design rectangulaire, sublimée par un décroché en diagonale à l'entrée, créant un porche esthétique soutenu par un poteau. Ce détail architectural unique donne à la façade un caractère distinctif tout en offrant un espace d'accueil chaleureux.
À l'intérieur, le modèle Malte propose trois chambres bien agencées, parfaites pour une famille ou pour ceux qui souhaitent un espace de vie flexible. La cuisine ouverte sur le séjour offre une ambiance conviviale, idéale pour les moments de partage. Un cellier adjacent à la cuisine ajoute un espace de rangement pratique.
Le modèle Malte inclut également un garage de 15 m², offrant un espace sécurisé pour votre véhicule et du rangement supplémentaire. Le porche d'entrée, avec son décroché en diagonale et son poteau, ajoute non seulement une touche de style à la maison, mais aussi une fonctionnalité pratique en protégeant l'entrée.
Personnalisez et configurez cette maison, selon vos envies et besoins. N’hésitez pas à faire une demande de renseignements pour votre projet de vie.
Prix total se décomposant entre prix terrain et prix de construction, communiqué a titre indicatif et susceptible de modifications. Prix comprenant une maison aux normes RE2020 (classe énergétiques A), Construction sur vide sanitaire, Menuiserie blanches, Pompes à chaleur réversibles et chauffe-eau thermodynamique.
Le prix ne comprend pas, Adaptations au sol, Peintures, Décorations, Aménagements intérieures, Revêtements de sols des chambres, Cuisines, Aménagements extérieures, Frais de dossier et assurances en cas de recours à un prêt, Taxe d’aménagement et participations d’urbanisme, Frais d’abonnement aux réseaux et Taxes afférentes, Frais notariés, Etudes de sol, Raccordements et VRD.
La société DS Construction s’efforce d’assurer une mise à jour régulière de ses annonces. Elle ne peut cependant être tenue pour responsable d’un éventuel défaut de mise à jour de ces annonces. Visuels non contractue
Mandat : 4707095
Plus d'informations
-
Descriptif
- Nb. de salles de bain : 1
- Nbre. de chambres : 3
- Nb. de pièces : 5
-
Superficies
- Superficie terrain : 500 m²
- Surface habitable : 88 m²
Localisation
Contactez nous
Pour plus d'informations sur cette annonce, n'hésitez pas à nous contacter