Vente
Maison
à
Saint-Étienne
422 850 €
Saint-Étienne (42230)
Les Maisons CECILE ROBIN, constructeur reconnu depuis près de 25 ans, vous propose de construire votre maison neuve aux dernières normes RE2020, sur la commune prisée de St Priest en Jarez, à deux pas de Saint-Etienne.
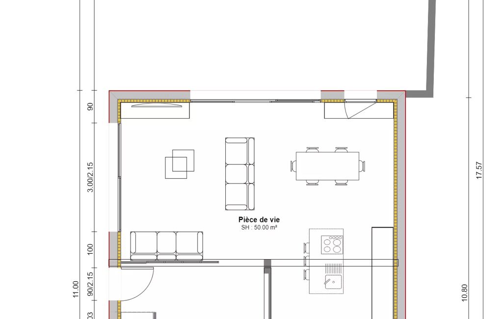
La maison présentée sur son terrain de 627m² offre plus de 120m² habitable + un garage.
Vous disposerez d'une grande et belle pièce de vie extrêmement lumineuse donnant directement sur la terrasse et le jardin.
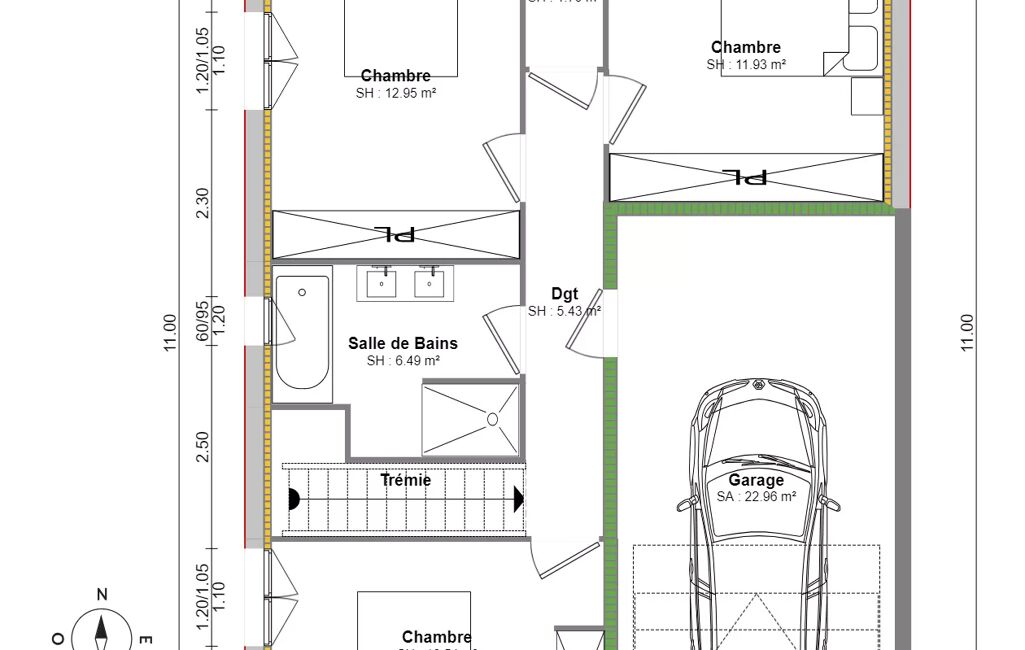
Ainsi que de 4 chambres (dont 1 au rdc), 2 salles de bain (dont 1 au rdc) , 2 WC (dont 1 au rdc).
La maison sera élevée sur vide sanitaire.
Le chauffage prévu est une PAC air/eau couplé à un plancher chauffant bi-zone.
Les nombreuses menuiseries extérieures gris anthracite RAL7016 apportent une touche de modernité.
Le sol sera carrelé en format 60x60. L'escalier béton sera carrelé également.
Plus d'information dans le dossier complet.
L'aménagement intérieur est personnalisable.
Rencontrons-nous et étudions votre projet dans le respect de vos besoins et de votre budget.
Profitez de notre savoir-faire reconnu, et bénéficiez de prestations de haute qualité.
Prévoir une enveloppe supplémentaire pour financer les éléments non inclus dans le prix affiché : frais de notaire, taxes, peinture, revêtement de sol des chambres, cuisine, embellissements extérieurs.
Photos maison non contractuelles, terrain vu pour vous, dont nous ne sommes ni propriétaire ni vendeur.
N'hésitez pas à nous contacter pour de plus amples informations.
Votre contact : Gianni BERNOCOLO
Tel : 06 72 33 02 57
Mandat : GB-STPRIEST-BRA-01
Diagnostic de Performance Énergétique (DPE)
Plus d'informations
-
Descriptif
- Nbre. de chambres : 3
- Nb. de pièces : 4
-
Superficies
- Superficie terrain : 629 m²
- Surface habitable : 90 m²
-
Conditions
- Honoraires à charge de : vendeur
Localisation
Contactez nous
Pour plus d'informations sur cette annonce, n'hésitez pas à nous contacter