Vente
		
			Maison
			 à 
			Marseille
		
				
			460 000 €		
			
	
	Marseille (13014)
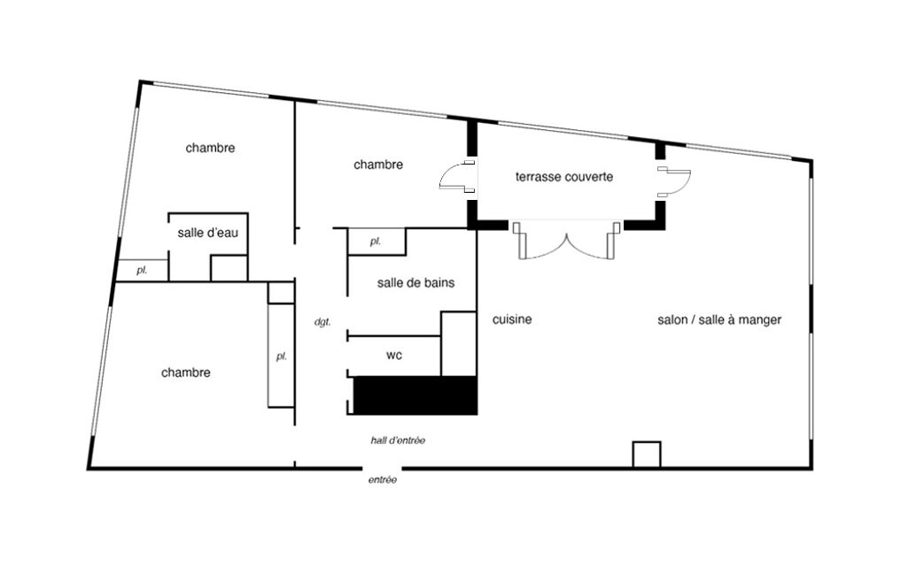
Le Merlan – Limite Saint-Jérôme / Saint-Mitre, l'agence Casaloft immobilier vous invite à découvrir cette maison individuelle de caractère, entièrement rénovée en 2020, d’une superficie de 153 m² habitables répartis sur deux niveaux indépendants, le tout sur une parcelle de 468 m², au calme absolu et sans vis-à-vis.
Deux logements indépendants ou une seule grande maison familiale :
Actuellement divisée en deux appartements, cette maison peut facilement être réunie grâce à un escalier intérieur existant.
- Au rez-de-chaussée (T2/3 78 m²) vous trouverez une agréable véranda ouvrant sur une cuisine équipée, deux chambres, une salle d’eau, deux WC indépendants, une buanderie.
- A l'étage (T3 75 m²) : un escalier extérieur et une petite terrasse privative donnent accès à une lumineuse pièce de vie de plus de 41 m² en triple exposition avec vue dégagée et sans vis à vis sur les toits et les jardins, composé d'un séjour et d'une cuisine ouverte. La partie nuit offre deux chambres, une salle d’eau, un WC indépendant.
Les Prestations sont soignées : Poêle à bois, climatisation réversible, double vitrage, volets roulants électriques... Un savant mélange entre le charme de l’ancien et le confort moderne.
Le Terrain est piscinable et peut accueillir plusieurs places de stationnement privatives. En outre, le PLUi offre des possibilités d'extension.
Située à 5 minutes du campus universitaire de Saint-Jérôme et du lycée Simone Veil, dans un environnement pavillonnaire paisible, avec vue dégagée et sans vis à vis, cette belle maison non mitoyenne est parfaite pour une famille, une résidence bi-générationnelle ou un investissement locatif (résidence principale avec revenus complémentaires).
-
Diffuze : votre prestataire de diffusion d'annonces immobilières
Mandat : 3677-14
Diagnostic de Performance Énergétique (DPE)
Plus d'informations
- 
			Descriptif
			
- Nb. de salles de bain : 2
 - Parking
 - Véranda
 - Terrasse
 - Nbre. d'étages : 1
 - WC séparés
 - Nbre. de chambres : 4
 - Nb. de pièces : 6
 
 - 
			Equipement
			
- Cuisine : Américaine
 - Placards
 - Chauffage : climatisation,individuel
 - Climatisation
 
 - 
			Environnement
			
- Vue : Panoramique
 - Calme
 - Sans vis-à-vis
 
 - 
			Superficies
			
- Superficie terrain : 468 m²
 - Surface habitable : 153 m²
 
 - 
			Conditions
			
- Honoraires à charge de : vendeur
 
 
Localisation
Contactez nous
Pour plus d'informations sur cette annonce, n'hésitez pas à nous contacter