Vente
Maison
à
Champniers
324 000 €
Champniers (16430)
Laetitia et Jennifer de l'agence immobilière adéquat, spécialistes du nord d'Angoulême, ont le plaisir de vous présenter cette propriété familiale située au sud de Champniers, à la limite de Ruelle.
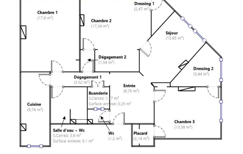
Si vous rêvez d'un vrai jardin, d'arbres matures et d'un cadre végétal spacieux, cette maison de 187 m² de surface utile vous offre un art de vivre rare : de l'espace, de la lumière et une vie dedans-dehors facile. La grande pièce de vie,avec lumière traversante, s'ouvre sur une terrasse avec vue sur le parc arboré de 2780 m². Avec 4 chambres et des volumes généreux, elle accueille aisément une famille en quête de confort et de nature proche des commodités.
Un bureau indépendant de 37 m², situé en sous-sol semi-enterré, complète la maison avec une salle d'eau et des toilettes. Il est idéal pour une activité professionnelle, du télétravail, un atelier ou un espace dédié pour un ado.
Deux caves, une buanderie, un atelier, une remise et un garage offrent un confort fonctionnel supplémentaire
La localisation est pratique au quotidien : Commerces et transports à pied et accès direct RN10 et RN141,
Prix de présentation : 324 000 € Honoraires à la charge du vendeur.
Diagnostics du 04/06/2025
Énergie primaire : C164 depuis le 1er janvier 2026
Émissions : C120
Dépenses estimées : 1710 à 2370 €/an
Indexation 2021-2023
Conso énergie finale : 148 kWh/m²/an
Les informations sur les risques auxquels ce bien est exposé, y compris l'obligation légale de débroussaillement, sont disponibles sur le site : www.georisques.gouv.fr
Pour vous garantir un accompagnement réactif et des visites réellement utiles, nous privilégions les projets clairement définis. Afin de préparer votre visite dans les meilleures conditions, merci de :
Prendre connaissance du mail d'information,
Vérifier que le bien correspond à vos critères et à votre budget,
Nous transmettre un justificatif récent de votre capacité de financement
Diffuze : votre prestataire de diffusion d'annonces immobilières
Mandat : 8-d7aae2f0
Diagnostic de Performance Énergétique (DPE)
Plus d'informations
-
Descriptif
- Cave
- Balcon
- Garage
- Nb. de salles de bain : 2
- Terrasse
- Nbre. d'étages : 2
- WC séparés
- Nbre. de chambres : 4
- Nb. de pièces : 7
-
Equipement
- Cuisine : Equipée
- Chauffage : gaz,individuel
-
Superficies
- Superficie terrain : 2780 m²
- Surface habitable : 187 m²
-
Conditions
- Honoraires à charge de : vendeur
Localisation
Contactez nous
Pour plus d'informations sur cette annonce, n'hésitez pas à nous contacter