Location
Bureau
à
Paris
44 227 € CC /mois
Paris (75003)
La Compagnie Immobilière de Paris vous propose à la location un immeuble indépendant de bureaux, situé rue Saint-Martin, en fond de cour, à proximité immédiate de Beaubourg et châtelet.
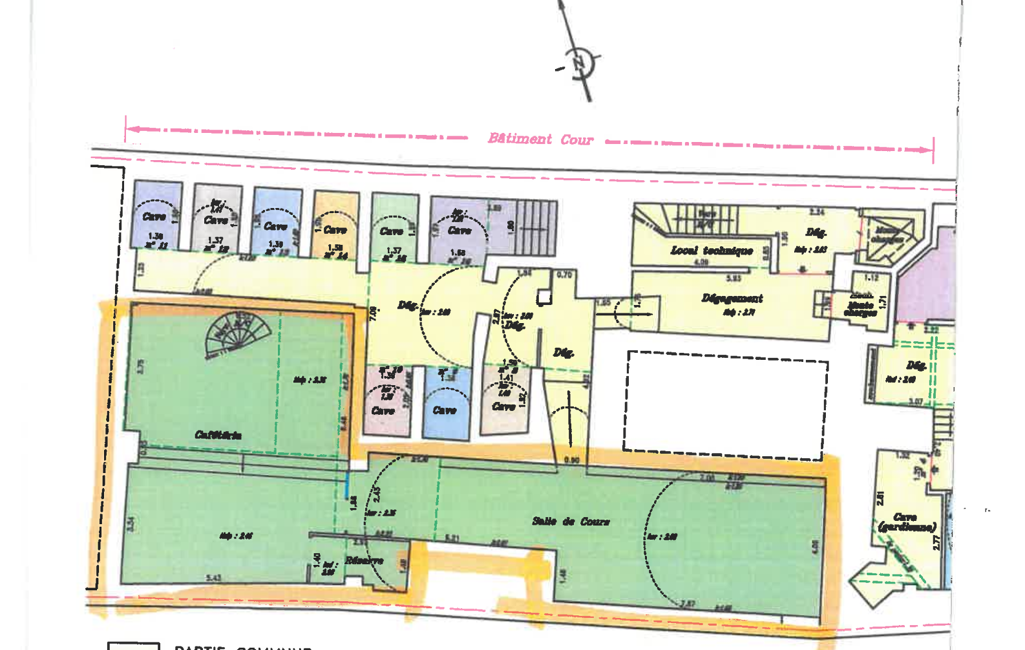
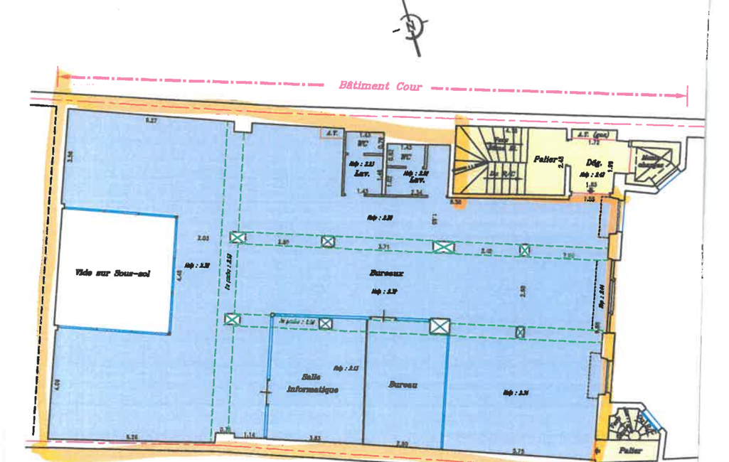
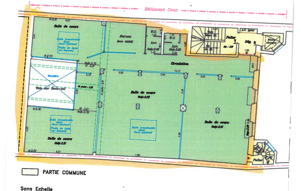
L'immeuble développe une surface totale d'environ 863 m², répartie sur 4 niveaux, desservis par un escalier et un ascenseur privatifs.
Les surfaces sont divisibles à partir de 298 m² et offrent une grande flexibilité d'aménagement, avec possibilité de décloisonnement.
Location possible en totalité ou à la division.
Surfaces & loyers - HT / HC / an
Immeuble en totalité
• 863 m² : 530 725 €
Scénarios de division :
• Sous-sol / RDC - 298 m² : 178 800 €
• 1er / 2e / 3e étages - 565 m² : 327 700 €
• Sous-sol / RDC / 1er étage - 507 m² : 300 020 €
• 2e / 3e étages - 356 m² : 206 480 €
Adresse centrale et recherchée du 3ᵉ arrondissement, secteur Beaubourg, parfaitement desservie par les transports en commun, à proximité immédiate des commerces et services.
DPE en cours d'actualisation.
Diffuze : votre prestataire de diffusion d'annonces immobilières
Mandat : 86-0078558b
Diagnostic de Performance Énergétique (DPE)
Plus d'informations
-
Descriptif
- Ascenseur
- Nbre. d'étages : 4
-
Superficies
- Surface habitable : 860 m²
Localisation
Contactez nous
Pour plus d'informations sur cette annonce, n'hésitez pas à nous contacter