Vente
Maison
à
Lavernay
290 000 €
Lavernay (25170)
Projet de construction sur Lavernay (terrain en exclusivité)
(A 12 min de Besançon Chateaufarine, 5 de Saint Vit)
Les Maisons MIKIT vous proposent la construction d’une maison contemporaine sur un terrain plat et viabilisé de 696 m².
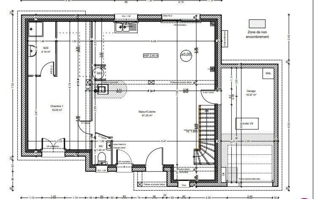
Au RDC, cette maison de 116 m² est composée d’une cuisine ouverte sur une grande pièce de vie de plus de 47 m². Vous trouverez également une suite parentale avec dressing et salle d'eau, un WC, ainsi qu’un garage de 17 m².
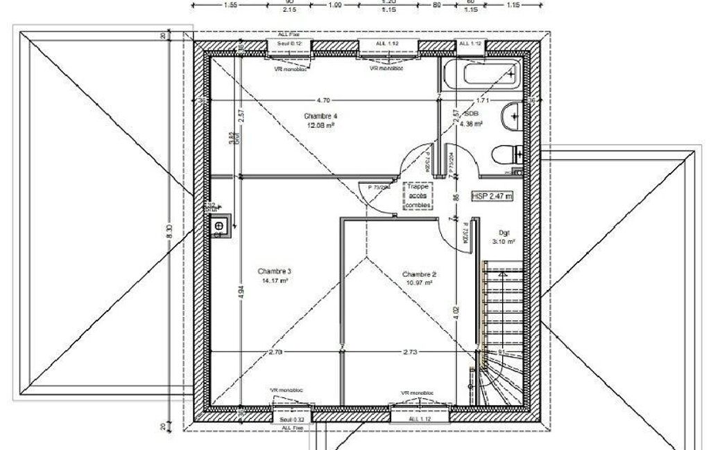
A l’étage, vous trouverez 3 belles chambres ainsi que une salle de bain avec un 2eme WC.
Cette maison dispose de prestations de hautes performances énergétiques, selon les Normes RE 2020
D’autres possibilités d’aménagement peuvent vous être proposées en fonction de vos besoins et de vos attentes.
Nous pouvons également vous proposer l'étude financière gratuite et l'accompagnement gratuit pour le dossier financier ainsi que toutes les démarches.
Pour plus d'information, n'hésitez pas à contacter Mikit Besançon directement au 03. 81 60 61 75
Mandat : LAVERNAY A JPO
Diagnostic de Performance Énergétique (DPE)
Plus d'informations
-
Descriptif
- Nb. de WC : 2
- Salon
- Garage
- Nb. de salles de bain : 1
- Nb. de salles d'eau : 1
- Terrasse
- WC séparés
- Nbre. de chambres : 4
- Type parking : Intérieur
- Nb. de WC séparés : 1
- Stationnement : 2
- Salle à manger
- Places de garage : 1
- Nb. de pièces : 5
-
Conditions
- Prix hors honoraires acquéreur : 290 000 €
- Honoraires à charge de : vendeur
-
Superficies
- Superficie terrain : 700 m²
- Surface habitable : 116 m²
Localisation
Contactez nous
Pour plus d'informations sur cette annonce, n'hésitez pas à nous contacter