Vente
Villa
à
Perpignan
750 000 €
Perpignan (66000)
Votre agence 123webimmo l'immobilier au meilleur prix vous présente : ***EXCLUSIVITE 123webimmo.com PERPIGNAN***
Projet personnalisable pour livraison 2025/2026
PERPIGNAN SUD-OUEST PARC DUCUP
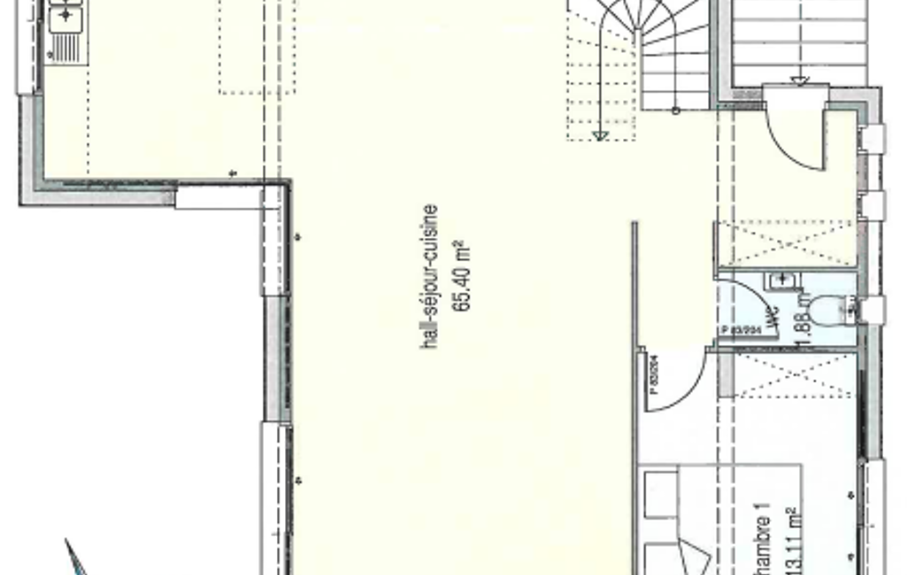
Villa d'architecte 4 faces comprenant au rez-de-chaussée : une grande pièce de vie avec cuisine équipée aménagée, le tout donnant sur une terrasse avec piscine, un bureau , un wc d'invité, une buanderie.
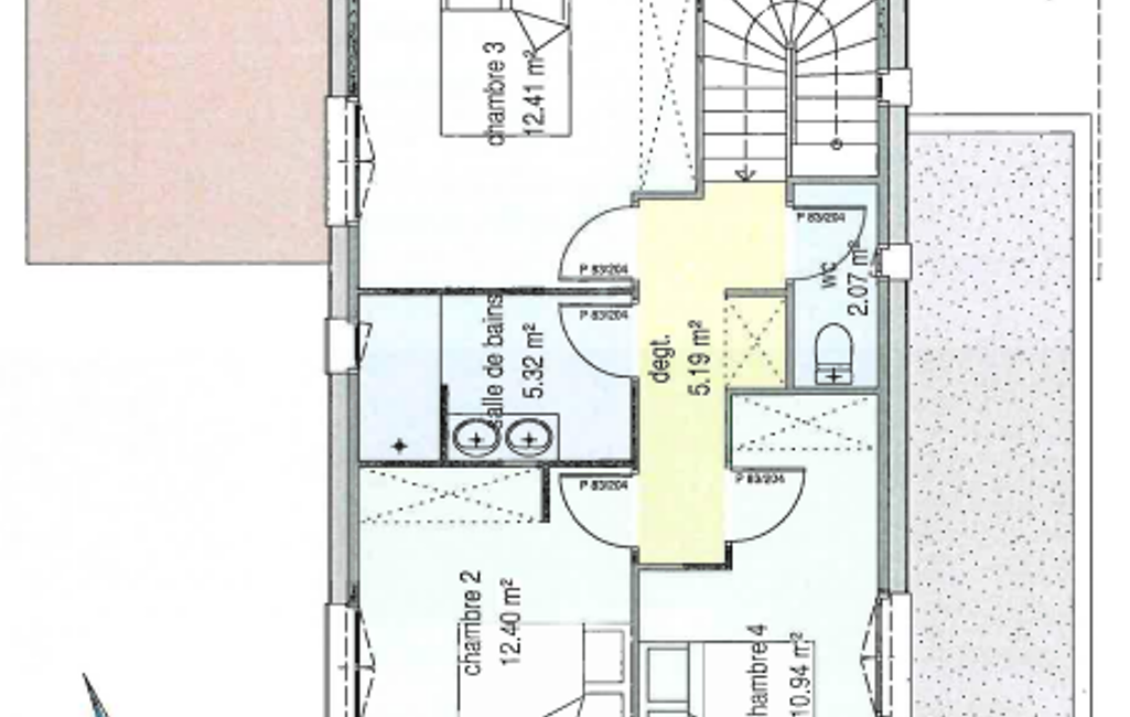
A L'étage ; une suite parentale (dressing, salle d'eau et wc indépendant), deux chambres avec penderie, une salle de bains et un wc indépendant.
Grand garage avec porte automatisée.
Piscine maçonnée 7m x 4m.
Mandat : 1046
Plus d'informations
-
Descriptif
- Nb. de WC : 3
- Nb. de salles de bain : 1
- Nbre. d'étages : 2
- WC séparés
- Nbre. de chambres : 3
- Nb. Parking : 6
- Nb. de pièces : 4
-
Equipement
- Four
- Congélateur
- Micro-ondes
- Lave vaisselle
-
Superficies
- Superficie terrain : 1159 m²
- Surface habitable : 156 m²
-
Extérieur
- Piscine
-
Environnement
- Orientation : sud,est
-
Etat
- Année de construction : 2024
-
Conditions
- Honoraires à charge de : vendeur
Localisation
Contactez nous
Pour plus d'informations sur cette annonce, n'hésitez pas à nous contacter
Philippe GUERIOT
Annonce 33 /
34