Vente
Appartement
à
Perpignan
287 000 €
Perpignan (66000)
Votre agence 123webimmo l'immobilier au meilleur prix vous présente : PERPIGNAN ROUTE DES PLAGES proche de CABESTANY et seulement 10minutes de CANET EN ROUSSILLON
?
Dans une magnifique villa d'architecte contemporaine et indépendante avec seulement 2 appartements distincts, un en rez de jardin de 68.50 m² et un autre à l'étage de 64.50 m²
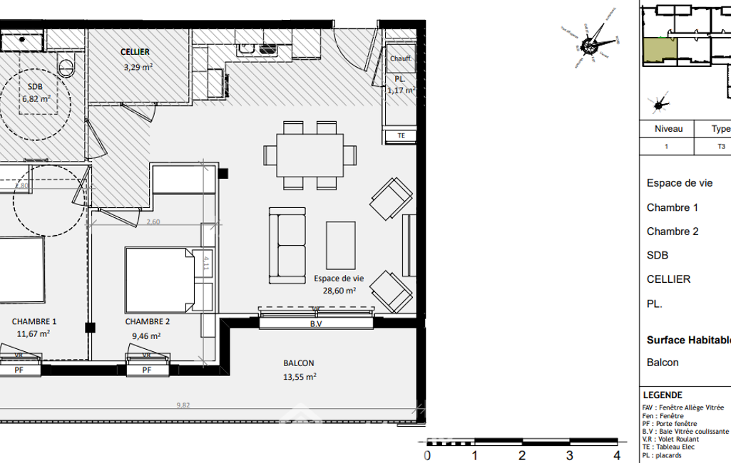
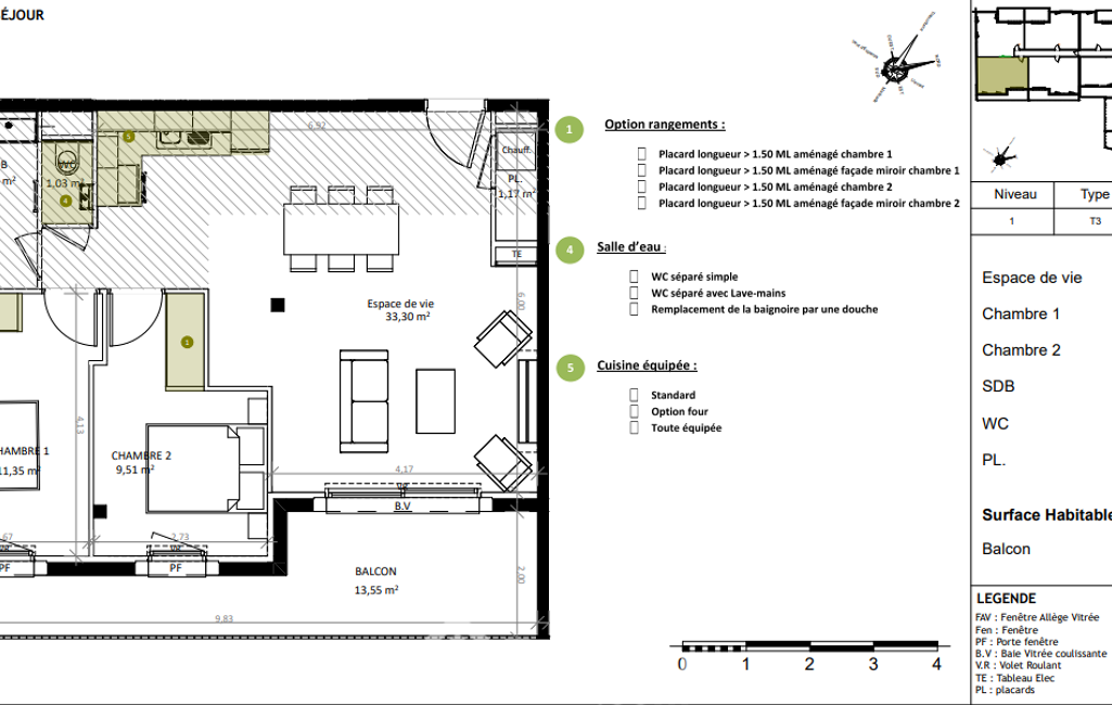
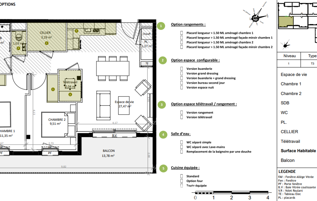
L'appartement au 1er et dernier étage possède une exposition plein sud et se compose d'un séjour/cuisine de 33m2, de deux chambres avec placard, d'une salle d'eau et d'un WC indépendant. Belle terrasse de 20m2.
Un garage et une place parking complète ce bien
Vendu hors cuisine, hors peinture.
FRAIS DE NOTAIRE REDUITS
CLIM GAINEE, CARRELAGE 45X45, WC SUSPENDUS, DOUCHE ITALIENNE
Les informations sur les risques auxquels ce bien est exposé sont disponibles sur le site du gouvernement : https://www.georisques.gouv.fr
Mandat : 201951L5
Plus d'informations
-
Descriptif
- Étage du bien : 1er
- Nb. de WC : 1
- Nb. de salles d'eau : 1
- Terrasse
- WC séparés
- Nbre. de chambres : 2
- Nb. Parking : 2
- Nb. de pièces : 3
-
Equipement
- Chauffage : individuel electrique
- Climatisation
-
Superficies
- Surface terrasse : 12 m²
- Surface habitable : 69 m²
-
Environnement
- Orientation : sud
-
Etat
- Année de construction : 2024
-
Conditions
- Honoraires à charge de : vendeur
Localisation
Contactez nous
Pour plus d'informations sur cette annonce, n'hésitez pas à nous contacter