Vente
Maison
à
Ploulec'H
499 250 €
Ploulec'H (22300)
Votre agence 123webimmo l'immobilier au meilleur prix vous présente : À Ploulec'h, sur un terrain constructible et divisible de 2 965 m2, découvrez cette superbe propriété de 210 m2 habitables accompagnée d'un hangar de 100m2. Profitez d'un cadre verdoyant, à seulement quelques minutes de la mer et de Lannion, offrant le parfait équilibre entre tranquillité de la campagne, richesse patrimoniale et proximité des services.
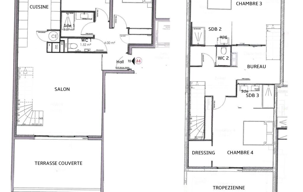
Retrouvez l'intégralité des photos, des plans directement sur le site de votre agence 123webimmo du Trégor-Goëlo.
Le rez-de-chaussée s'ouvre sur un hall d'entrée donnant accès à une grande pièce de vie orientée sud de 80m2 avec cuisine aménagée et équipée, salon, salle à manger, d'un espace nuit comprenant une suite parentale de 11m2, avec sa salle de bains de 6m2 comprenant une douche à l'italienne et une baignoire, ses WC séparés et son dressing indépendant de 11m2 (potentielle chambre). Un bureau de 9m2, une salle de sport de 11m2, un autre WC séparé et une buanderie de 20m2 complète ce niveau.
L'étage renferme 3 chambres de 11 à 12m2, 1 salle de jeux, 1 salle de bains de 4,5m2, un dressing et débarra qui peuvent être aménagés en une 3ème salle de bains et un WC séparé pour l'étage.
A l'extérieur, le portail automatique s'ouvre sur un superbe jardin plat constructible et divisible, paysager et aménagé avec un grand espace de stationnement enrobé menant à un hangar de 100m2 sur dalle béton, permettant de stationner 2 voitures et un grand camping-car.
De plus, le terrain est piscinable.
PRESTATIONS : Tout à l'égout - Plaques de cuisson au gaz - Pompe à chaleur avec plancher chauffant sur tout le RDC + insert bois - Fenêtres double vitrage avec volets roulants électriques - Baie vitrée à galandage au sud - VMC - Electricité conforme - Toiture récente - Evacuations pour piscine en place.
Retrouvez l'intégralité des photos, des plans directement sur le site de votre agence 123webimmo du Trégor-Goëlo.
Les informations sur les risques auxquels ce bien est exposé sont disponibles sur le site du gouvernement : https://www.georisques.gouv.fr
Mandat : 513
Diagnostic de Performance Énergétique (DPE)
Plus d'informations
-
Equipement
- Four
- Chauffage : individuel sol
- Micro-ondes
- Lave vaisselle
-
Descriptif
- Nb. de WC : 3
- Nbre. d'étages : 2
- WC séparés
- Nb. de pièces : 8
-
Superficies
- Superficie terrain : 2965 m²
- Surface habitable : 210 m²
-
Environnement
- Orientation : sud
-
Conditions
- Honoraires à charge de : vendeur
Localisation
Contactez nous
Pour plus d'informations sur cette annonce, n'hésitez pas à nous contacter