Vente
Villa
à
Lambesc
299 000 €
Lambesc (13410)
Votre agence 123webimmo vous présente : En exclusivité, découvrez cette maison villa à vendre à Vernègues (13116), située dans le hameau recherché de Cazan, à seulement 5 minutes de Lambesc, à proximité immédiate des écoles et commerces, avec un accès rapide vers Salon-de-Provence et les principaux axes autoroutiers. Un emplacement privilégié alliant cadre résidentiel paisible et praticité au quotidien.
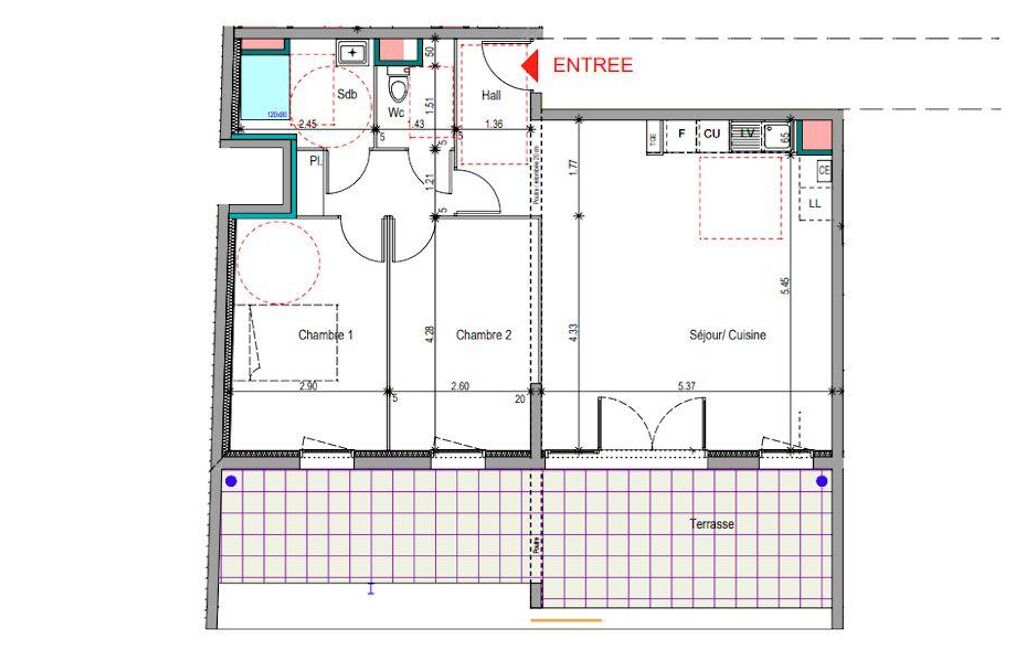
Cette maison individuelle T4 d'environ 82 m² habitables est implantée sur un terrain d'environ 149 m². Elle sera libre en juin 2026.
Au rez-de-chaussée, vous profiterez d'un espace de vie lumineux et convivial, avec un séjour ouvert sur l'extérieur, prolongé par une terrasse semi-couverte idéale pour les moments de détente. La cuisine ouverte s'intègre harmonieusement à l'ensemble et bénéficie d'un cellier attenant, apportant un véritable confort de rangement. Un WC indépendant complète ce niveau.
À l'étage, l'espace nuit propose trois chambres, avec la possibilité d'adapter l'agencement selon vos besoins (bureau, chambre d'enfant, espace polyvalent). Une salle d'eau ainsi qu'un second WC séparé complètent cet étage fonctionnel.
Les prestations offrent un bon niveau de confort : carrelage grand format, isolation performante, volets roulants électriques et équipements actuels répondant aux attentes du marché.
À l'extérieur, le jardin privatif, entièrement clôturé, constitue un espace agréable et facile d'entretien pour profiter pleinement des beaux jours. Deux places de stationnement privatives viennent compléter le bien.
Cette maison propose un agencement optimisé, une belle luminosité et un cadre de vie recherché sur le secteur de Vernègues, à proximité immédiate de Lambesc et Salon-de-Provence.
Elle conviendra aussi bien à un projet de résidence principale qu'à un pied-à-terre en Provence ou un investissement locatif dans un secteur dynamique.
Maison villa 4 pièces à vendre à Vernègues, bien rare sur le secteur.
Les informations sur les risques auxquels ce bien est exposé sont disponibles sur le site du gouvernement
Mandat : 1534
Diagnostic de Performance Énergétique (DPE)
Plus d'informations
-
Descriptif
- Nb. de WC : 2
- Nb. de salles de bain : 1
- Terrasse
- Nbre. d'étages : 1
- WC séparés
- Nbre. de chambres : 2
- Nb. Parking : 2
- Nb. de pièces : 4
-
Superficies
- Surface terrasse : 15 m²
- Superficie terrain : 149 m²
- Surface habitable : 82 m²
-
Equipement
- Chauffage : individuel electrique
-
Environnement
- Orientation : ouest
-
Etat
- Année de construction : 2026
-
Conditions
- Honoraires à charge de : vendeur
Localisation
Contactez nous
Pour plus d'informations sur cette annonce, n'hésitez pas à nous contacter