Viager
Appartement
à
Paris
Bouquet 750 000 €
Paris (75018)
Situé au coeur du quartier prisé de Lamarck-Caulaincourt, cet appartement plein de potentiel vous offre une opportunité unique d'acquérir un bien à un prix très décoté. Installé au deuxième étage d'un bel immeuble haussmannien, il se distingue par ses volumes généreux et son charme de l'ancien.
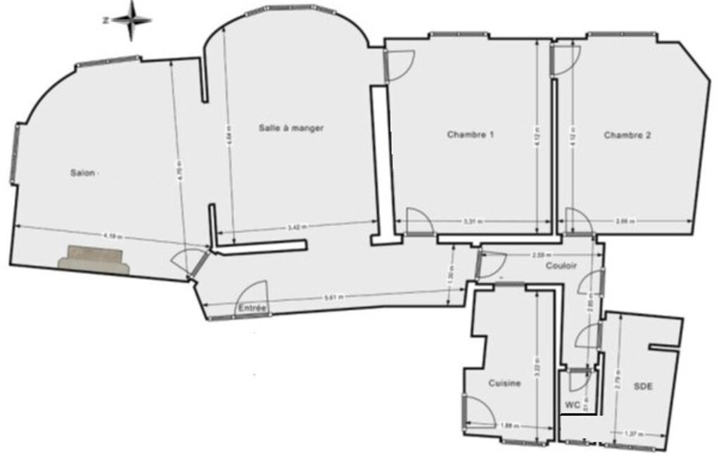
D'une surface de 87,31 mètres carrés, cet appartement se compose d'une entrée, d'un double séjour lumineux avec deux balcons, d'une cuisine indépendante aménagée, de deux belles chambres avec balcon, de WC séparés et d'une salle de bains équipée d'une baignoire et d'une douche. Vous apprécierez la hauteur sous plafond généreuse de 2,90 mètres, ainsi que les détails d'époque tels que les moulures et le parquet en point de Hongrie.
Vendu en viager occupé SANS RENTE, cela signifie que les Vendeurs se réservent le droit d'usage et d'habitation jusqu'au décès du dernier survivant. L'acquéreur aura à sa charge le paiement de la taxe foncière ainsi que les charges non-récupérables.
Pour les néophytes, voici un bref aperçu du fonctionnement du viager occupé : l'Acheteur acquiert la nue-propriété du bien tandis que les Vendeurs (un couple dont la moyenne d'age est de 79 ans) continuent à l'occuper jusqu'à la fin de leur vie. Une fois le dernier occupant décédé, l'acheteur devient pleinement propriétaire du bien. Cette forme de vente présente des avantages financiers certains, notamment un prix d'acquisition attractif, mais nécessite une bonne compréhension des modalités spécifiques du viager. (2.50 % d'honoraires TTC à la charge de l'acquéreur.)
Mandat : 4797
Diagnostic de Performance Énergétique (DPE)
Plus d'informations
-
Descriptif
- Cave
- Étage du bien : 2eme
- Nb. de WC : 1
- Nb. de salles de bain : 1
- Gardien
- Ascenseur
- Nbre. d'étages : 6
- Nbre. de chambres : 2
- Nb. de pièces : 4
-
Equipement
- Cheminée
- Digicode
- Chauffage : collectif radiateur
- Interphone
-
Environnement
- Calme
- Quartier : Montmartre
- Orientation : est
-
Conditions
- Prix hors honoraires acquéreur : 710 000 €
- Honoraires à charge de : acquéreur
- Pourcentage des honoraires acquéreur : 2,5
-
Loi ALUR
- Moyenne de la quote part(an) : 5 664 €
- Détail de la procédure : Pas de procédure en cours
-
Etat
- Année de construction : 1900
-
Superficies
- Surface habitable : 87 m²
Localisation
Contactez nous
Pour plus d'informations sur cette annonce, n'hésitez pas à nous contacter