Vente
Maison neuve
à
Castets
295 000 €
Castets (40260)
Sur la très dynamique commune de Castets, Maison d’en France Sud-Ouest vous a déniché ce terrain de 770 m² dans un quartier très calme, à deux pas du cœur du bourg, non loin des écoles, collège, services. A moins de 20 minutes de l’océan et tout près de l’A63 qui vous mènera à Bordeaux comme à Bayonne.
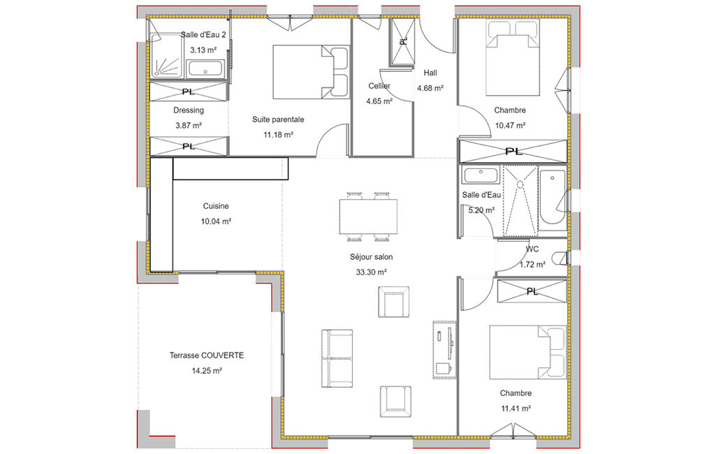
Maisons d’en France Sud-Ouest vous propose d’y construire cette maison moderne et fonctionnelle de près de 100m².
Côté jour vous profiterez d’une belle pièce de vie de 43m² baignés par la généreuse lumière des trois baies vitrées et d’une belle terrasse couverte où prolonger les soirées entre amis.
Côté nuit : une confortable suite parentale avec sa salle d’eau privative et deux grandes chambres avec placards intégrés et une belle salle de bains.
Doté d'un réglage pièce par pièce, le système de chauffage suggéré vous assurera le plus grand confort dans le respect de la RE 2020, tout en vous assurant de très substantielles économies, tant en chauffage qu’en rafraichissement.
Maison prête à décorer, ne vous resterons que les peintures et la cuisine. Votre talent fera le reste !
Pas de plan type chez Maisons d’en France : plan, disposition, système de chauffage, tout reste entièrement personnalisable selon vos envies.
Terrain viabilisé de 770 m², selon disponibilité de notre partenaire foncier. Non mandaté pour la vente du terrain.
Maison + terrain + frais de notaire + terrassement + raccordements à partir de 295 000 euros. Dommages-ouvrage et garanties de parfait achèvement et de livraison à prix et délais convenus incluses.
Pour plus de renseignements, n'hésitez pas à joindre Katherine FERRERE, votre conseillère Maisons d'en France Sud-Ouest.
Référence : KF-CAST-629
Mandat : KF-CAST-629
Plus d'informations
-
Descriptif
- Nbre. de chambres : 3
- Nb. de pièces : 4
-
Conditions
- Prix du terrain : 118 000 €
- Honoraires à charge de : vendeur
-
Superficies
- Superficie terrain : 770 m²
- Surface habitable : 100 m²
Localisation
Contactez nous
Pour plus d'informations sur cette annonce, n'hésitez pas à nous contacter