Terrain 518 m²
Thurins (69510) 179 000 

Mandat : 1946191
Description
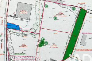
Iad France - Véronique Carpin vous propose : Belle opportunité Thurins - Terrain 518 m² -LIBRE CONSTRUCTEUR- LOT 3 sur plan Venez découvrir sur la commune de Thurins, proche du centre bourg et des transports en commun (TCL11 et 2ex) une parcelle de terrain non viabilisée d'une superficie de 518 m². Exposé Sud, ce terrain est hors lotissement et hors zone d'activité - Vendu libre constructeur. La viabilité se situe en bordure de terrain. Honoraires d'agence à la charge du vendeur. Bien non soumis au DPE. Les informations sur les risques auxquels ce bien est exposé, y compris l'obligation légale de débroussaillement, sont disponibles sur le site Géorisques : http://www.georisques.gouv.fr. La présente annonce immobilière a été rédigée sous la responsabilité éditoriale de Mme Véronique Carpin mandataire indépendant en immobilier (sans détention de fonds), agent commercial de la SAS I@D France immatriculé au RSAC de LYON sous le numéro 922345954, titulaire de la carte de démarchage immobilier pour le compte de la société I@D France SAS.

Informations complémentaires

Agence iad france

Carré HAUSSMAN III. CS 10476 77127 Lieusaint
veronique.carpin@iadfrance.fr - 06 38 80 43 51
Commentaires de visite