Appartement 58 m²
Fréjus (83600) 269 000 

Mandat : 1836375-4
Description
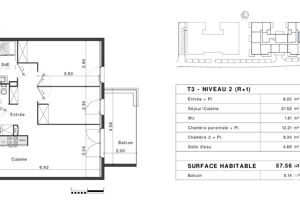
Iad France - Catherine Olesik (06 63 14 57 08) vous propose : À SAISIR : Appartement de type 3 pièces neuf avec de belles prestations, proche des grands axes, commerces, plage, et écoles. Deux emplacements de stationnement en sous sol complètent le bien. Honoraires d’agence à la charge du vendeur. Bien non soumis au DPE. Les informations sur les risques auxquels ce bien est exposé sont disponibles sur le site Géorisques : www.georisques.gouv.fr. La présente annonce immobilière a été rédigée sous la responsabilité éditoriale de Mlle Catherine Olesik EI (ID 76157), mandataire indépendant en immobilier (sans détention de fonds), agent commercial de la SAS I@D France immatriculé au RSAC de FREJUS sous le numéro 485386445, titulaire de la carte de démarchage immobilier pour le compte de la société I@D France SAS. Retrouvez tous nos biens sur notre site internet. www.iadfrance.fr.

Informations complémentaires

Agence iad france

Carré HAUSSMAN III. CS 10476 77127 Lieusaint
catherine.olesik@iadfrance.fr - 06 63 14 57 08
Commentaires de visite