Boutique 196 m²
Lyon (69007) 645 000 

Mandat : 1837039
Description
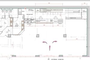
Iad France - Alexia Sanchez (06 99 97 12 55) vous propose : MURS COMMERCIAUX À VENDRE – LYON 7 – GERLAND SUD Emplacement premium – Local d’angle – Fort potentiel commercial et locatif Opportunité rare à Lyon 7ème – Gerland Sud, secteur en plein développement économique et urbain. Nous vous proposons à la vente des murs commerciaux récents (moins de 5 ans), bénéficiant d’un emplacement stratégique, d’une visibilité exceptionnelle et d’une accessibilité optimale, au cOEur d’un quartier dynamique et très recherché. UN EMPLACEMENT STRATÉGIQUE ET ULTRA CONNECTÉ • Métro B, Tram T1 et T6 – arrêt Debourg à 300 mètres • Arrivée du Tram T10 prévue début 2026 • Moins de 15 minutes des gares Part-Dieu et Perrache • Quartier en forte mutation : bureaux, logements, enseignement, innovation Stationnement facilité : • Parking Q-Park directement sous l’immeuble • Trois emplacements « zone livraison » au pied du local UN LOCAL COMMERCIAL D’ANGLE À FORTE VISIBILITÉ Atout majeur : local d’angle ouvert sur une voie verte piétonne, offrant : • Une excellente exposition • Un flux naturel important • La possibilité de créer une terrasse extérieure, idéale pour développer une activité attractive et génératrice de chiffre d’affaires UN ESPACE MODERNE, LUMINEUX ET MODULABLE Ce local commercial se distingue par : • De beaux volumes • Une luminosité naturelle importante • Une grande surface entièrement exploitable • Une modularité totale, adaptée à de nombreux projets, plusieurs entrées possibles Activités possibles : Restauration, bar, café, concept food, événementiel, showroom, bureaux, activité hybride ou tertiaire. LES AVANTAGES CLÉS DU BIEN • Construction récente avec architecture contemporaine • TVA récupérable (prix affiché hors TVA) • Fort potentiel locatif • Bien idéal pour investisseur ou exploitant • Secteur porteur avec valorisation à long terme UNE OPPORTUNITÉ À FORTE VALEUR AJOUTÉE Que vous soyez : • Entrepreneur à la recherche d’un emplacement premium pour développer votre activité • Investisseur souhaitant sécuriser un actif rentable et attractif Ce bien réunit emplacement, visibilité, accessibilité et potentiel. Contactez-moi dès maintenant pour recevoir le dossier complet et organiser une visite. Un bien rare sur le secteur de Gerland Sud, à découvrir sans tarder. Information d'affichage énergétique sur le bien associé à cette annonce : DPE NS indice et GES NS indice. La présente annonce immobilière a été rédigée sous la responsabilité éditoriale de Mme Alexia Sanchez (ID 37101), Agent Commercial mandataire en immobilier immatriculé au Registre Spécial des Agents Commerciaux (RSAC) du Tribunal de Commerce de LYON sous le numéro 849 811 336 Retrouvez tous nos biens sur notre site internet. www.iadfrance.fr.

Informations complémentaires

Agence iad france

Carré HAUSSMAN III. CS 10476 77127 Lieusaint
alexia.sanchez@iadfrance.fr - 06 99 97 12 55
Commentaires de visite